DB中国旗舰官方网站生产网板式阶梯格栅,砂水分离器,PAM加药装置,产品质量好

DB中国旗舰官方网站
 
 
联系我们 CONTACT
 
 
DB中国旗舰官方网站
史经理 15906151243
邵经理 15301530861
电话:0510-87830610
传真:0510-87831340
网址:https://www.daxue-sheng.com
邮箱:hopehb@126.com
地址:江苏省宜兴市高塍镇塍文路18号
 
 
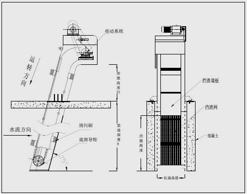
WBF转刷网蓖式格栅除污机
 
 

WBF转刷网蓖式格栅除污机

概述:
 

  WBF转刷网蓖式格栅除污机适用于城市污水处理、自来水行业、电厂进水口,同时也可作为纺织、食品加工、造纸、皮革等行业生产工艺中不可缺少的专业设备,是目前技术稳定的固液分离设备之一。

 
工作原理:
 

  WBF转刷网蓖式格栅除污机主要由驱动装置、机架、主轴、栅网、托渣板、固定板刷、回转刷及牵引链组成。在电机驱动下,通过减速机减速后,带动链轮与链条运动,固定在回转链条上板刷沿栅网网面由下而上移动,清扫网面并带走污物,污物运送至顶部时,大部分靠重力自行落至排渣都,少量附着在固定板刷上的污物被转动的回转刷清除掉,完成除污过程,液体则通过栅网的间隙流过,整个工作过程连续进行。

 
特点与应用:
 

  转刷网蓖式格栅除污机能对水中的果皮、杂草、悬浮物等容易缠绕难以卸料的杂质进行可靠的拦截和清除,有效应用于果汁制品厂、果酱制品厂、农作物制品厂等。相对于耙齿形式的细格栅,本产品优点:传动部件相对较少,工作可靠;采用便拆式结构,维护简单;设备有自洁机构,不易堵塞,不易被垃圾缠绕、容易卸料。

 
外形示意图:
 
过水流量计算:

过水流量计算—— 
格栅每小时过水流量: 
Q=K*(B-160)*h*V*3600
其中: 
Q=过水流量(m³/h); 
K=与格栅间隙有关的流量系数(见系数表); 
B=格栅机宽(m); 
h=栅前水深(m),一般按1m或低于渠深0.3m以上; 
V=过流速度,一般取0.6~1m/s。

 
主要技术参数:

4-1  过流系数K

 

格栅间隙 (mm)

0.5

1

2

3

5

流量系数K

0.08

0.1

0.12

0.27

0.36

注:可以采用插值法得出其他间隙对应K值的近似值。


 

专业制造网板式阶梯格栅,PAM一体化加药装置,砂水分离器,螺旋输送机系列,铸铁镶铜圆闸门
地址:江苏省宜兴市高塍镇塍文路18号 网址:https://www.daxue-sheng.com
DB旗舰·(中国区)有限公司官网 版权所有 备案号:苏ICP备14012459号

备案号:苏ICP备14012459号 苏公网安备32028202232132号

 

 
格栅厂家,DB中国旗舰官方网站生产网板式阶梯格栅,PAM加药装置,砂水分离器,提供砂水分离器结构图,砂水分离器工作原理,产品价格优惠